top of page

ENQUIRIES

New Build, Englefield Green
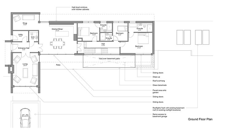
This new build home in greenbelt land was a rare opportunity to design something without constraints. The brief was to create a 3 bed home as a backlands development of an existing property. It had to be single storey in height, but use of an existing basement area created the opportunity to add another level to the design.
Planning permission was granted in 2019, adding significant value to the land and estate, and an opportunity to build a modern and stylish 3 bed home.


Planning Permission GRANTED​
bottom of page






